洞身开挖应根据隧道长度、断面大小、结构形式、工期要求、机械设备、地质条件等,选择适宜的开挖方案(包括开挖顺序、爆破、施工照明、通风、排水、支护、出渣等)。为了最大限度地利用围岩自承能力,必须采用有利于减少超挖、减少围岩扰动的开挖方法进行洞身开挖。
1、洞身开挖应根据地质条件、断面大小、机械设备等,选择适宜的开挖方案(包括开挖顺序、爆破、施工照明、通风、排水、支护、出渣等)。为了最大限度地利用围 岩自承能力,必须采用有利于减少超挖、减少围岩扰动的开挖方法进行洞身开挖。
2、隧道爆破应采用光面爆破,必要时采用预裂爆破技术;施工中应优化钻爆设计、提高钻眼效率和爆破效果,降低工料消耗。对不宜爆破、挖掘机又难以挖动的软弱围岩以及黄土地段,鼓励采用铣挖机配合装载机进行隧道开挖施工。
3、应有良好的通风、照明、调度、高压风、
给排水、供电系统。
良好的通风系统、良好的调度系统、良好 的高压风系统、良好的给排水系统、良好的供电 系和照明系统是隧道快速施工的关键保障。
4、双向开挖隧道的贯通宜选择在围岩较好的 地段。双向开挖距离接近时,两端施工应加强联 系、统一指挥,并采取浅眼低药量,控制爆破震 动;当两开挖面间的距离为15-30m时,应改为单 向开挖,一端必须停止开挖、将人员机具撤走, 并在安全距离处设立警告标志。对采用单向开挖 的隧道,出洞前应反向开挖不少于30m或不小于洞 口超前管棚长度,严禁在隧道洞口处贯通。

隧道选择在洞口位置贯通,造成洞口沉降变形
5、双洞开挖时,应根据两洞的轴线间距、洞口里程距离、地质条件及其他自然条件,选择适当的开挖方法,确定好两洞开挖的时间差和距离差,并采取措施防止后行洞开挖对先行洞周壁产生不良影响。

1、浅埋段开挖超 过50m必须进行浅 埋段二衬及明洞 模筑衬砌施工。

2、初支紧随开挖面及时施作,减少围岩暴露时 间,抑制围岩形,并及时进行复喷,硬岩地段 复喷作业距掌子面不得超过60m 。
3、仰拱应及时封闭成环,铺底距掌子面距离不大于60m。4、洞口及洞内软岩段二次衬砌尽早施工,其他段落根据监控量测结果适时施工,一般情况下二 衬距掌子面距离不超过200m 。
1、强调了洞口浅埋段和洞口边仰坡稳定安全 重要性,要求二衬和明洞必须及时施作。 2、强调了软弱围岩及不良地质施工要点及 安全要求,初期支护要紧跟,仰拱要及时封闭成 环,二衬衬砌要及时施作。福建省要求仰拱封闭 位置距离掌子面一般情况下不应大于35m,一般不 超过70m,大家可参考。 3、硬岩地段初喷要及时,复喷距离掌子面 不超过60m,铺地不超过60m,二衬一般不超过 200m。
隧道开挖必须与支护、衬砌施工相协调。如需变更设计除
应满足技术规范要求外,还需满足以下原则:
两车道土质和类土质、含水量大、承载力低的隧道宜采用中隔壁法(CD法)或交叉中隔壁法(CRD法)施工。
三车道土质围岩和石夹土或土夹石的松散石质围岩、 地下水丰富的隧道应按中隔壁法、交叉中隔壁法或双侧壁 导坑法施工。
浅埋大跨度隧道及地表下沉量要求严格而围岩条件很差时应选用交叉中隔壁法或双侧壁导坑法施工。
两车道土质和类土质、含水量大、承载力 低和三车道土质围岩和石夹土或土夹石的松散石 质围岩、地下水丰富的隧道采取台阶法施工存在 较大安全隐患,沉降往往难以控制,极其容易造 成侵限或塌方等质量安全问题。
V级围岩和浅埋段的Ⅳ级围岩每循环进尺控制在2榀钢拱架间距以内。
采用环形导坑预留核心土法施工的隧道要严 格按该施工工序组织施工,尤其是要加强钢拱架 的锁脚,减少下沉;对土质的隧道应以核心土为 基础设立2根临时钢架撑以支撑拱顶,核心土应根 据围岩量测结果适当滞后开挖。
采用上下台阶法施工的隧道,台阶分界线不得 超过起拱线;上台阶长度不得过长,应尽量采用 短台阶,以便及时成环封闭。上台阶长度应不大 于30m;下台阶马口落底长度不大于2榀钢拱架的 间距,应一次落底,并尽快封闭成环。
台阶长度过长往往造成封闭不及时;下台 阶马口开挖和拱架落底过程是台阶法施工最危险 时间,一次开挖和落底长度过长,往往会造成支 护变形加大甚至失稳塌方,指南规定落底长度不 大于2榀钢拱架。
超欠挖控制
应严格控制欠挖。拱、墙脚以上1m内断面严禁欠挖。
应尽量减少超挖,不同围岩地质条件下的允许超挖值应符合规范要求。
应采用光面爆破、提高钻眼精度、严格控制单响药量等措施,并提高作业人员的技术水平。
开挖后应采用断面仪或激光投影仪直接测定开挖断面尺寸,并绘制断面图。
隧道的开挖轮廓应按设计和相关规范要求预留变形量,并根据监控量测信息进行调整。
隧道断面尺寸:开挖断面、初期支护断面、二次衬砌断面
隧道激光断面仪

光爆效果好,炮眼残留率高


光爆效果差,超欠挖严重

隧道掘进施工前,应进行专门钻爆设计,并进行试爆,根据试爆结果合理调整各项参数。
光面爆破工作是隧道施工的基础性工作, 施工、监理单位要加强检查,确保光爆质量。
周边眼应根据围岩情况合理布置,保证开挖 断面符合设计要求,硬岩开眼位置在开挖轮廓线 上,软岩可向内偏5~10cm。
铺底和仰拱底面采用预留光爆层爆破,Ⅱ、Ⅲ级围岩段的水沟应与隧底光爆层同时爆破成形。
机械设备选型配套
(1)机械设备应本着“性能先进、配套合理、着 重工效”的原则,按大断面(长)隧道机械化施 工技术要求选型配套。一般要求一是开挖能力大 于施组要求能力;二是装碴能力大于开挖能力;三是运输能力大于装碴能力;四是设备配置的富 余系数不宜过大(一般>1.2),以避免造成部分设 备能力的浪费。
(2)一般隧道大断 面开挖可采用多层钻 孔平台配12~18台风 动凿岩机钻孔。对于 长度大于5km或独头 掘进超过2km的长大 隧道应优先采用性能 先进的多臂液压钻孔 台车进行施工。

采用多层钻孔台架全断面掘进

(3)出渣运输设备的选型配套应保证机械设备充 分发挥其功能,并应使出渣能力、运输能力与开 挖能力相适应,宜配备大功率、大容量、性能先 进的装运机械设备,加快施工进度。独头掘进2km 以内的隧道一般采用无轨运输出渣;独头掘进超 过2km,应根据通风方案、辅助坑道来确定出渣方式。
(4)掘进150m以上,隧道施工必须实施管道通风
(5)装药:加强炮眼堵塞,提高爆破效果,周边眼的堵 塞长度不宜小于400mm。宜配备专用炮泥机加工炮 泥,提高炮孔堵塞质量。鼓励承包人采用水压控 制爆破法(ABM)等爆破效果较好的装药形式,减 少炸药消耗量。
装药与钻孔作业不得在同一开挖工作面进行。

主要应用于两车道Ⅱ、Ⅲ及Ⅳ级较好围岩和三车 道Ⅰ、Ⅱ、Ⅲ级围岩段的施工。
隧道采用全断面开挖,爆破用药量大,应 控制一次起爆的炸药量和循环进尺,降低爆破震 动对围岩的影响和确保开挖工作面的稳定。IV、V级围岩在采取有效支护措施稳定开挖工作面 后,也可采用全断面发开挖。
(1)台阶不宜多分层,上下台阶之间的距离尽可能满足 机具正常作业,并减少翻渣工作量;当顶部围岩破碎,需支护紧跟时,可适当延长台阶长度。
(2)施工亦应先护后挖,宜采用超前锚杆或超前小钢管辅助施工措施。开挖应尽量采用微震光面爆破技术。
(3)初期支护应紧跟开挖面;上台阶施工时,钢架底脚 宜设锁脚锚杆和纵向槽钢托梁以利下台阶开挖安全。下台 阶在上台阶喷射混凝土强度达到设计强度的70%后开挖。
(4)隧道两侧的沟槽及铺底部分应和下台阶一次开挖成型。
(5)台阶分界线不得超过起拱线,上台阶长度不得大于30m,下台阶马口落底长度不大于2榀钢拱 架的长度,应一次落底,并尽快封闭成环。
台阶开挖台阶长度要考虑初期支护闭合断面的时间要求,围岩稳定性愈差,闭合时间愈短。

三台阶法施工,台阶步距、高度较合理

先开挖上部导坑成 环形,并进行初期支护,再分部开挖剩余部分的 施工方法。其施工步骤

(1)环形开挖留核心土法,将开挖断面分为上、中、下及 底部四个部分逐级掘进施工,核心土面积应不小于整个断 面面积的50%。上部宜超前中部3~5m,中部超前下部3~ 5m,下部超前底部10m左右。
(2)核心土与下台阶开挖应在上台阶支护完成后、喷射混 凝土强度达到设计强度的70%后进行。为防止上台阶初期 支护下沉、变形,其底部宜加设槽钢托梁,托梁与钢架连 为一体,钢架底部应按设计要求设置锁脚锚杆,并与纵向 槽钢焊接,锚杆布设俯角宜为30°
(3)每一台阶开挖完成后,及时喷射4cm厚混凝土 对围岩进行封闭,设立型钢钢架及锁脚锚杆,分 层复喷混凝土到设计厚度,必要时各台阶设临时 仰拱加强支护,完成一个开挖循环。
(4)对土质的隧道应以核心土为基础设立3根临时 钢架竖撑以支撑拱顶和拱腰,核心土应根据围岩 量测结果适当滞后开挖。
是将隧道分为左右两部分进行开 挖,先在隧道一侧采用二部或三部分层开挖,施作初期支 护和中隔墙临时支护,再分台阶开挖隧道另一侧,并进行 相应的初期支护的施工方法。其施工步骤:

CD法,侧壁按两台阶的,适合于围岩条件较好的

(1)上部导坑的开挖循环进尺控制为1榀钢架间距(0.75~0.8m),下部导坑的开挖进尺可依据地质情况适当加大。
(2)中隔壁法或交叉中隔壁法施工时,初期支护完成后方可进行下一分部开挖,地质较差时,每个台阶底部均应 按设计要求设临时钢架或临时仰拱;各部开挖时,周边轮 廓应尽量圆顺;应在先开挖侧喷射混凝土强度达到设计要 求后再进行另一侧开挖;左右两侧导坑开挖工作面的纵向间距不宜小于15m;当开挖形成全断面时,应及时完成全断面初期支护闭合。
说明:左右导坑施工工序衔接较清晰、步序合理,仰供施作及时

左、右两侧导坑 开 挖工作面的纵向间距不符合要求

(3)导坑开挖孔径及台阶高度可根据施工机具、 人员等安排进行适当调整。应配备适合导坑开挖 的小型机械设备,提高导坑开挖效率。
(4)中隔壁的拆除工艺是关键技术,中隔壁拆除 时间的判定要以拱顶下沉和净空收敛为依据,一般在拱顶下沉7天内增量在2 mm以下作为拆除中壁 的基准。同时,要求中隔壁的拆除应滞后于仰拱,一次拆除长度应根据量测数据慎重确定,拆除 后应立即施作二次衬砌。
交叉中隔壁法(CRD法)
1)CRD法是在软弱围岩大跨度隧道中,先分部开挖隧道一侧,施作中隔壁和横隔板,再分部开挖隧道另一侧并完成横隔板施工的施工方法。


双侧壁导坑法是先开挖隧道两侧导坑,及时施作导坑四周初期支护及临时支护,然后再根据地质条件、断面大小,对剩余部分采用二部或三部开挖的方法。其施工步骤:

说明:双侧壁导坑关键在于各工序的施工质量,特别是支撑钢架的连接一定要紧密,要加强监控量测,确保安全。

双侧壁导坑法施工

(1)围岩开挖应尽量采用挖掘机和人工配合无爆 破施工,局部需爆破施工时,宜弱爆破施工,以 尽量减少对地层的扰动。
(2)侧壁导坑开挖后,应及时施工初期支护并尽早形成封闭环;侧壁导坑形状应近于椭圆形断面,导坑跨度宜为整个隧道跨度的三分之一;左右 导坑施工时,前后拉开距离不宜小于15m;导坑与 中间土体同时施工时,导坑应超前30~50m。
双侧壁法开挖。但左、右导坑前后拉开的间距 不 足,且导坑与中间土体拉开的间距也不足

(1)一般情况下,连拱隧道施工不宜左右两洞齐头并进,同时开挖、衬砌,宜先左(右)洞,后右(左)洞;再左( 右)洞、继而右(左)洞的逐步推进,如此往复循环依次进 行;先行洞应选择在偏压侧及地质较为软弱的一侧;先行 洞开挖超前另侧主洞30~50m,先行洞二次衬砌断面落后 后行洞开挖面,距离现场可根据爆破震动监测结果确定, 一般不小于2倍洞径。
(2)为确保施工安全,避免二衬出现开裂,要求左右洞必须至少各配备一台二次衬砌模板台车。
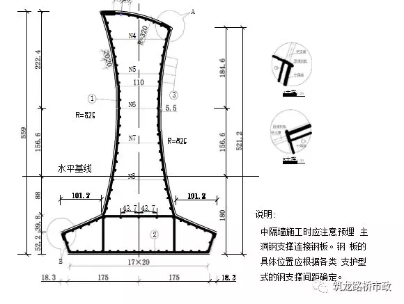
(3)应严格按设计要求进行中隔墙施工,中隔墙施工时应注意预埋与主洞钢支撑连接钢板。

某连拱隧道钢拱架未与中隔墙顶部有效连接,事后该座隧道出现塌方

