(1)土方开挖平面图
工艺说明:土方开挖前绘制土方开挖图。开挖图要标示出基坑 上口线、下口线、垫层边线、基础边线、基底标高、深挖部分 标高上下口线,以及所有线的平面位置。
项目部技术员须严格控制边线位置,防止土方单位超挖。

(2)土方开挖开槽支撑
工艺说明:开挖前先进行支撑施工,支撑形式在保证基坑安全 的前提下,要选择利于出土的形式,同时确定支撑拆除方案。
待支撑达到设计要求的强度后方可进行下步土方开挖。

(3)土方开挖分层
工艺说明:机械开挖要分层进行,严禁一次透底,防止主、被动土压力严重不平衡对基坑安全造成风险。

(4)土方开挖严禁超挖
工艺说明:为防止超挖,土方开挖时派专人值班,负责标高控制。
机械开挖时要求控制每层标高,以便开挖均匀并满足设备要求。人工 进行基底开挖时,遵循“宁欠勿超”的原则,在基坑(槽)两边控制 标高处插短钢筋头,在基坑中拉通白线,并用水准仪随时对开挖深度 进行实测,保证最后的基底标高。

(1)防水成品保护
工艺说明:回填前,先用建筑胶将聚苯板点粘贴在 防水层(随着回填高度进行),在回填土夯实时,不得破坏聚苯板保护层, 根部采用人工夯实。

(2)管道下土方回填
工艺说明:管道下方受管道 限制,已无法使用机械夯实时,采用人工从管道下方挤 密夯实;管道两侧及正上方 500㎜范围内用人工夯实, 避免损坏管道。管道以上500㎜外,正常使用机械夯 实。冬期回填管沟底至管顶 0.5m范围内不得使用含有冻土的回填土。

(3)土方回填
工艺说明:填土分层虚铺厚度和压实遍数应符合上表规定。当分段回填时,接缝处每层应错开1m以上。冬期回填每层铺土厚度应比 正常施工时减少20%~25%,其中冻土含量不得超过15%,其粒径不大于150㎜,常温回填土粒径不大于50㎜。
回填不允许使用建筑垃圾回填,防水1m范围内不得出现大于20cm*20cm*20cm石块。


(1)垫层标高控制
工艺说明:待混凝土浇筑并振捣后,及时拉线或采用红外线标线仪 复核垫层上表面标高,确保垫层标高符合设计要求。

(2)垫层磨光收面
工艺说明:待垫层标高复核无误后,对混凝土表面进行第一道收面 ,待混凝土初凝时,采用磨光机提浆并进行第二道收面压光。


01 抗渗混凝土
工艺说明:
(1)严格控制混凝土塌落度,防水混凝土采用预拌混凝土时,入泵坍落度宜控 制在140mm~160mm,坍落度每小时损失不应大于20mm,坍落度总损失值不应大 于40mm;当塌落度损失不能满足要求时,可加入原水胶比水泥砂浆或同品种减 水剂搅拌,严禁加水。
(2)浇筑混凝土时应分段分层连续进行,使用插入式振捣器应快速插入缓慢拔 出,插点要均匀排列,逐点移动,顺序进行,不得遗漏,做到均匀振实。移动 间距不大于振捣作用半径的1.5倍(一般为20-30cm,)。振插上一层时应插入下 图1.4.1.1 坍落度试验 层5-10cm,以使两层混凝土结合牢固,不得过振、漏振,以混凝土表面不再下 沉,翻处水泥浆且不再出现气泡为止,通长情况下点振捣时间为20~30s;
(3)防水混凝土浇筑完成后应及时进行养护(洒水或覆盖薄膜养护),养护周 期不得小于14d。当日最低气温低于5℃时,不应采用洒水养护,必须采用覆盖 的养护方式,具体可采用覆盖塑料薄膜、塑料薄膜加麻袋、塑料薄膜加土工布 等方式;
(4)顶板及底板混凝土浇筑完成后,在混凝土土终凝前进行多次抹压并覆盖, 防止混凝土表面失水裂缝,已出现的表面裂缝,在混凝土终凝前抹压修整。

02 桩头防水
工艺说明:
(1)在桩头、桩侧及桩侧外围300mm范围内垫层的表面涂刷水泥基渗透结晶型防水涂料。
(2)在桩头根部及桩头钢筋根部凹槽内埋设遇水膨胀橡胶条。
(3)在桩顶、桩侧及桩侧外围300mm范围内垫层上表面5mm厚聚合水泥防水砂浆。
(4)待基层达到卷材施工条件时进行大面积防水卷材施工,卷材施工完毕后在桩侧与卷材接缝处嵌聚硫嵌缝膏。


03 地下室外墙施工缝防水构造
工艺说明:
(1)L型、T型转角处止水钢板应采用成品构件;放线准确定位,固定在墙、板中间且外露,连续布置;
(2)先安装转角止水钢板,再安装直线段;转角段与直线段止水钢板搭接应达到100mm;
(3)搭接焊必须采用双面满焊,保证焊缝饱满、平滑,无漏焊、无孔眼等缺陷;
(4)钢板的凹面应朝向迎水面,转角处止水钢板应做成45°角,止水钢板居中布置。橡胶止水带及钢板橡胶止水带做法同上。


工艺说明:止水钢板应加工成“〔”状,钢筋不宜穿止水钢板,采 取补焊的方法无法保证质量。有箍筋的构件,箍筋在此处宜采取将 箍筋断开,弯折10d以上与止水钢板焊接的工艺方法。止水钢板接头 必须采用搭接焊接,搭接长度应≥50mm,双面焊接。

工艺说明:在浇筑混凝土时,在施工缝部位埋植30㎜×10㎜木条, 沿墙厚居中留置出宽30 ㎜、深10 ㎜通长凹槽,混凝土接缝前将止 水条放入凹槽内,用水泥钉固定。遇水膨胀止水条应具有缓胀性能 ,7d膨胀率不应大于最终膨胀率的60%,最终膨胀率宜大于220%。

04 底板超前止水后浇带防水构造:
工艺说明:
(1)后浇带两侧增设水平遇水膨胀止水条、增加基础梁底板下 层钢筋保护层。
(2)超前止水后浇带采用中埋式橡胶止水带,橡胶止水带位于加厚部分混 凝土中间,橡胶止水带宽度为300mm。橡胶止水带上侧、下侧隔离缝采用挤 塑板填充,在橡胶止水带上下分别放置。

05 外墙后浇带
工艺说明:止水钢板应放置在外墙中间,两端弯折处应朝向迎水面。水平钢板在钢板止水带两侧拉通线,以保持其上口平直。采 用斜向钢筋焊接固定止水钢板。钢板的接头采用焊接,两块钢板 的搭接长度为100mm,两端均应满焊,后浇带处铺一层3厚防水卷 材作为附加层,两侧各伸过后浇带300mm。

06 顶板后浇带
工艺说明:顶板后浇带两侧按施工缝做法预留好钢板止水带, 在顶板混凝土浇筑前在后浇带两侧安装好钢丝网。后浇带支撑 及模板应单独设置,加固应牢靠、模板与后浇带两侧混凝土结 构拼缝应严密。

07 地下室顶板:
工艺说明:考虑地下室顶板积水导致车库顶板渗漏可与设计院 沟通增加一层60厚碎石滤水层或采用排水板滤水层,减少渗漏 风险。

08 地下室外墙结构措施:
工艺说明:地下室穿墙螺杆推广采用三段式止水螺杆(止水片尺寸为3×50×50mm )。防水施工前须剔除塑料垫块。浇水湿润清除孔内杂物,周边浇水湿润。用防 水砂浆封堵内外侧螺杆孔凹槽并压实抹平。

09 地下室外墙结构措施:
工艺说明:1、防水层施工之前应做好螺杆洞封堵,阴角处做R50圆角施工,阳角处应 打磨做圆弧,外墙混凝土接缝处较大错台应打磨平顺,修补平整墙面空洞; 2、阴阳角、穿墙管道根部、后浇带、施工缝应设置防水附加层; 3、防水卷材施工:卷材搭接长度100mm,要求满粘,不得空鼓; 4、挤塑保温板应及时设置,专用粘接剂粘结,避免柔性防水层被破坏 5、回填土施工必须进行旁站,分层回填分层夯实。

10 地下室底板防水措施:
(1)采用实心砖砌筑作为永久性保护墙(砖胎膜),砖胎膜应抹1:2.5水泥砂浆找平层;
(2)阴角处用水泥砂浆做出R50圆角,阳角处应打磨成圆弧;
(3)防水层铺贴前,基层应干燥,涂刷基层处理剂,不得漏刷、透底;
(4)阴阳角处应做防水附加层,范围超过各边角外部延伸250mm;
(5)两幅卷材短边和长边的搭接宽度均不应小于10mm。采用多层卷材时,上下两层和相邻两幅卷材的接缝应错开1/3幅宽,且两 层卷材不得相互垂直铺贴;
(6)防水层在永久保护墙处甩槎,预留出至少300mm作为外墙防水搭接长度,顶端临时用石灰砂浆砌四皮砖;
(7)外挑底板浇筑时应将底板外挑部分表面压光,混凝土拆模后,应及时将防水层沿外挑底板铺贴,注意保证搭接长度100mm, 上反外墙至超过外墙水平施工缝不小于300mm。


11 地下室顶板防水措施:
(1)对于种植覆土区和非种植覆土区,顶板防水均优先采用化学阻根防水卷材。
(2)地下室顶板浇筑振捣密实,面层磨压不少于3遍;顶板需严格控制模板拆除时间, 避免结构顶板出现扰动裂缝;
(3)防水层施工之前出顶板结构阴角、穿顶板套管根应做50mm直径圆弧,并设置防水附加层,延伸出各边角250mm;
(4)防水卷材搭接长度100mm;遇墙上反至覆土层以上300mm;
(5)细石混凝土刚防层浇筑时应调整好钢筋网片保护层大小,严禁网片贴底放置,面层应磨压密实,分格缝灌缝应饱满,贴200 宽防水卷材盖住分隔缝。


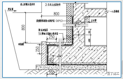
12 底板与外墙交接处防水构造:
(1)地下室外墙与底板阴角处需做R50mm圆角,基层验收合格后方可施工防水;
(2)防水涂膜(防水卷材)附加层向上超过角部不小于300mm;
(3)地下室外墙防水层沿墙施工高于距室外地坪500mm处;
(4)地下室顶板耐根穿刺防水卷材收头处采用间距250mm水泥钉钉50mm宽防锈金属压条固定。


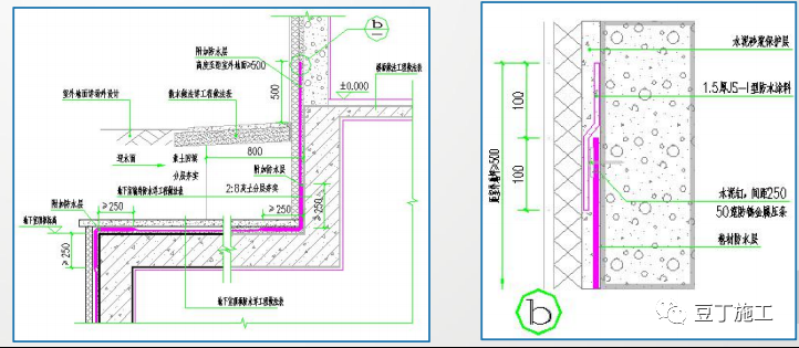
13 顶板与外墙交接处防水构造:
(1)地下室外墙防水层向顶板搭接250mm以上(如外墙防水为双层,则第一层向顶板搭接250mm,第二层向顶板搭接400mm) 外墙防水层应在顶板上收边,顶板防水层应在外墙上收边,不得在阳角处收边;
(2)顶板与外墙交接阳角增加防水附加层,材质同顶板防水,附加层向外墙搭接250mm;
(3)地下室顶板耐根穿刺防水层向外墙搭接应超过250mm;
(4)外墙及顶板防水施工完成验收后,应及时施工防水保护层;
(5)地下室外墙与顶板阴角处需做R50mm圆角,基层验收合格后方可施工防水;
(6)地下室外墙防水层沿墙施工至距室外地坪500mm处;采用间距250mm水泥钉钉50mm宽防锈金属压条固定,收口处附加一 层1.5厚JS防水涂料补强。


14 卷材防水层封边:
(1)防水收口位置设置在距室外散水上150mm处。
(2)预留凹槽:浇筑时须预留防水收口20mm×50mm凹槽,做凹槽时可采用预埋50mm宽板条的方式。
(3)将凹槽清理干净,凹槽范围内的卷材必须采取满沾法。
(4)凹槽防水收头用金属压条钢钉间距500mm固定,再用密封膏密封。


15 电梯井/集水坑防水构造:
(1)附加层卷材铺贴时,不要拉紧,要自然松铺,无皱折即可。
(2)电梯井、积水坑基层阴阳角必须做成≥50mm的圆弧或45°(135 °) 八字角。
(3)电梯底坑、集水坑在阴阳角处必须施工防水附加层,防水附加层搭接长度250mm
(4)防水卷材施工完成后,必须及时施工防水保护层;
(5)电梯底坑至集水坑预埋排水管位置、标高须符合设计图纸要求。


16 穿墙套管防水构造:
(1)刚性穿墙套管止水环50x5mm,必须双面焊接,焊缝要连续饱满光滑,没有夹渣气泡、没有烧伤母材,套管内外侧要涂刷 2 道防锈漆,漆面涂层要均匀,无漏涂;
(2)穿墙套管止水环居墙中设置,周边加强钢筋按要求绑扎牢固,混凝土振捣密实;
(3)墙面套管与结构面平齐时,防水附加层须卷入套管内50mm。
(4)套管两端分别采用沥青麻丝填塞,端头用防水油膏封堵密实;
(5)外墙防水卷材施工时,管根处先施作防水附加层,再按要求施作防水层,收头卷材应紧贴管道,并采用金属管箍箍紧,密封膏密封。


