文章来源:询匠
算客工场询匠团队近日接到某厂房项目,该项目共2万余平米,有若干个功能不同的车间组成。其中某些单体的地下室外墙采用了集中标注和原位标注的形式,如下图所示:

每一个标注的含义是什么?你在工作中是否也遇到过如此标注的墙体呢?你是否能从标注中快速识别出哪个是墙体的水平分布筋、哪个是垂直分布筋呢?如何才能正确计算这些钢筋量呢?询匠团队将带你一一解读。

地下室外墙集中标注

分析标注信息

众所周知,剪力墙的水平分布筋和垂直分布筋的钢筋构造是不同的,决定着每种钢筋的计算长度,计算错了可是会引起重大量差的哦。因此,从剪力墙的集中标注中区分出内、外侧水平分布筋和垂直分布筋就是核心关键了。翻开平法图集16G101-1P19页就能解开我们的疑惑。
原来这种标注方式是地下室外墙的集中标注,包含了地下室外墙编号、墙身长度、墙体厚度、墙身纵筋、拉筋及墙身高度信息等。
如图中DWQ1,长度为F轴~H轴,墙厚=300,OS代表外墙外侧贯通筋,H为水平筋,V为垂直筋;IS代表外墙内侧贯通筋,H为水平筋,V为垂直筋。
建模算量
知道了各标注的含义,在计算墙体纵筋的时候是不是就简单多了呢?例如我们常用的GTJ2021软件,剪力墙构件中,将H代表的钢筋输入在水平分布钢筋内,V代表的钢筋输入在垂直分布钢筋内即可按各自的钢筋构造正确计算其长度了。

如果内外墙水平和竖向分布筋不同如何处理呢?例如16G101-1P20页案例所示,DWQ2,墙厚300,外侧水平筋为C18@200,内侧水平筋为C16@200;外侧垂直筋为C20@200,内侧垂直筋为C18@200。

剪力墙转角处内外侧水平分布筋的构造也是不同的(详见16G101-1P71~72),也会影响钢筋长度,因此当内外侧水平分布筋不同、内外侧垂直分布筋不同时要分别计算了。
算量软件里水平分布筋和垂直分布筋都按“外侧+内侧”的格式输入,即外侧筋在前,内侧筋在后,具体如下图所示:

温馨提示:除了会输入钢筋信息还要会画图才能正确计算,内外侧水平/垂直分布筋不同时记得按顺时针方向画墙哦。

地下室外墙原位标注

分析标注信息
剪力墙钢筋使用集中标注和原位标注的方式比较少见,算客们也是比较困惑。经过与设计人员沟通,原来设计采用了地下室外墙原位标注的方式来表达墙体水平非贯通筋,查询平法图集,在16G101-1P19页第3.5.5条找到了依据。
地下室外墙的原位标注,代表水平非贯通筋,以H开头,注明钢筋强度等级、直径、分布间距,以及自支座中线向两侧跨内的延伸长度,当两侧长度相同时可在一侧标注。原位标注中的水平非贯通筋与集中标注中的水平贯通筋“隔一布一”方式间隔布置。

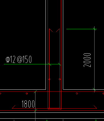
从前视图方向看其剖面,正如下图所示:

剪力墙的竖向非贯通筋在墙身剖面图中表示,这种表示方式就很普遍了,如下图所示:

建模算量
明确了钢筋构造方式,接下来就是如何算量的问题了。在绘制模型时,剪力墙的水平非贯通筋和竖向非贯通筋目前都是在其他钢筋中输入,水平非贯通筋的钢筋长度可以输入该墙段非贯通筋的总长,加强筋类型为“水平加强筋”;竖向非贯通筋输入单总长度,加强筋类型为“垂直加强筋”,加强筋根数软件会根据绘制的墙长及输入的分布间距自动计算。


以上便是询匠团队在本项目中积累的知识点之一。今日的知识点是否对您有帮助呢?想了解更多项目案例、算量技巧吗?请关注询匠公众号吧。
询匠服务热线
土建项目经理:17310453262
安装项目经理:15321087807
发项目链接

