文章来源:询匠
一、玻璃幕墙介绍
玻璃幕墙作为现代建筑中的一个独特设计,它不仅体现建筑学、美学结构设计的结合,而且把玻璃的多种功能也完美体现出来。诸如玻璃幕墙的通透性,透过玻璃视线达到很好,视野达到较大,使建筑物内外环境相通、相融等。玻璃幕墙工艺性能好,玻璃幕墙支撑构件加工细致,表面光滑有良好的工艺感及艺术感,可以适应任何几何形状,在建筑体型上产生丰富的变化,能够充分体现设计师的想象力和创造力。目前玻璃幕墙使用的一个较大的亮点就是各种节能幕墙玻璃的使用大大降低了建筑物的能耗。
查询算客工场平台项目,有关幕墙的项目涉及到幕墙深化设计、幕墙控制价编制、幕墙投标报价、幕墙技术标方案等各类项目,数量不少。从算客工场后台查询,也有进入维权的幕墙项目,查询项目发现,导致维权的项目有部分原因是对幕墙计量原则,雇主和算客双方的理解不一致造成的。小编今天针对幕墙计量计价做了简单分析,供大家参考。

二、玻璃幕墙工程量计算
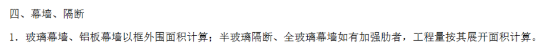
国标的清单关于幕墙的计算规则,是按图示尺寸计算,如下:

各个地方的定额计算规则大多也是这样,如下:

那么幕墙的工程量到底该如何算,我们分布列下。
玻璃幕墙的种类,大致分为幕墙有框支撑玻璃幕墙、全玻式幕墙、点支撑玻璃幕墙和单元式幕墙。不同类型的幕墙在计算工程量时需分开计算统计,因为他们的综合单价不一致。
如果按清单规则计量,玻璃幕墙计算面积即可,但要考虑定额内容和市场的实际差异,通过计算主材进行对比调整。如果幕墙需要按市场行情进行计量计价,当然更需要计算主材工程量。
幕墙主材工程量主要需要计算的,有预埋件、后置埋板、龙骨(钢龙骨或铝型材龙骨)、连接件、中空玻璃、密封胶、保温封堵及其他主材,辅材原则上不需要单独计算,用一笔费用直接列上就行。如果幕墙设计有开启框、百叶等,注意也要单独计算单独列项,不要遗漏开启窗五金;
① 玻璃幕墙外立面面积,我们采用的是按设计图示尺寸以展开面积计算,玻璃肋按玻璃边缘尺寸以展开面积计算并入幕墙内的方式计算外立面的面积,下面是参考的计算底稿。

② 预埋件:预埋件对于新建工程大部分都是有总包单位完成,幕墙单位只需考虑后置埋板,如果是施工投标,注意实际项目中,因图纸不完善等因素,总包埋件总有部分不可用,需后补,在报价时综合考虑。预埋件工程量根据预埋件的详图计算重量,计价根据清单规则套相应的清单及定额项;计算式如下图(参考):

③ 龙骨、连接件等:龙骨计算分竖向龙骨和横向龙骨,结合立面图、大样图和节点图三部分,计算龙骨的工程量及连接件数量;另外计算过程中注意收口、不同材质连接处、转角处等位置增加的钢板、转角板、龙骨等。计算龙骨的结果要在清单项组价中对龙骨含量进行调整,方法是用龙骨总量除以幕墙面积,得到龙骨的单方含量数据,在组价中做相应调整。




计算底稿样式如下:(所有零件统一依次列表计算)

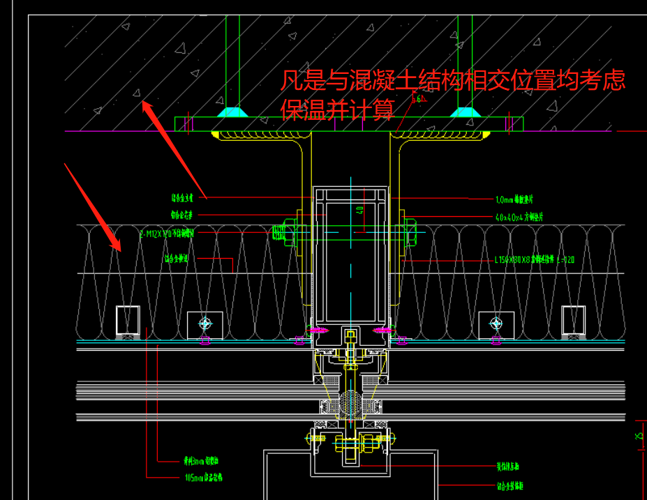
④ 防火岩棉、密封胶等零星量的计算,防火岩棉根据与主体混凝土板、梁、柱等相交部分的面积计算岩棉的面积,密封胶根据玻璃相交的横竖缝隙连接处的长度计算密封胶的工程量。组价时注意国产和进口胶的区别。




三、小结
算客工场有大批做过幕墙项目的算客供大家选用,平台也积累了大量幕墙项目数据,希望能给造价行业带来更大帮助。
本文是我个人的工作经验总结,仅供参考,如有建议或疑问,欢迎大家留言指教和讨论。

询匠致力于为您提供匠心、放心、安心、省心的工程咨询服务。
关注询匠,了解更多。

土建咨询17310453262
QQ:3283170039
安装咨询15321087807
QQ:3214423261