文章来源:建筑工程鲁班联盟
源自丨沈阳腾越建筑工程有限公司
源自丨沈阳腾越建筑工程有限公司
ALC轻质隔墙板也称蒸压加气轻质混凝土板,属于新型建筑节能产品。其具有容重轻、隔音保温效果好、造价低廉、安装工艺简单、工期要求较低、生产工业化、标准化、安装产业化等优点,目前在高层框架建筑以及工业厂房的内外墙体获得了广泛的应用。
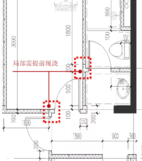
工法特点 1、运输损坏 ALC轻质隔墙板强度低,运输搬运易破损 【处理措施】 1)吊装、堆放:起吊时需用尼龙吊带(不可采用钢丝绳)捆绑于板材两端600mm处,每次起吊重量不超过2T,落地时板材两端600mm处各垫枕木一块,吊运时要有专人指挥,板材两端吊带捆绑距离要一致,吊带要顺直,保证板材两端同时离地和落地。为方便驳运板材,卸货时堆放层数不得超过两层,条件允许时单层堆放。 2)板材质量:不使用工艺达不到国家要求或者配料、工艺不合理的板材。 3)施工管理:不应为满足工期,将不够龄期28d的墙板送至现场使用。 4)防潮保护:应在运输和施工现场需要采取防潮措施,防止受潮。 5)图纸深化:应提前1-2个月与内墙板公司沟通图纸深化相关事谊。 【优化方向】 1)结构梁底应尽量统一净高,减小板材因高度不同而产生的类型种数。 2、二次结构深化布置图 转角(阴阳角)、门垛等位置无异形板,局部需现浇 设置构造柱 1)陶粒板墙长及ALC轻质隔墙板墙长大于6米,小于12米,在中部设置构造柱。 4)隔墙板转角或T型连接应用φ6销钉固定。销钉位置宜距隔墙顶和底各300~400。销钉间距为700左右。销钉锚入两块不同方向板材的总深度不得小于一块板厚再加150mm。 转角或T型处理方式 3、ALC轻质隔墙板排版、开槽 开槽切口宽不限,深不宜大于板厚的1/3 【处理措施】 1)ALC轻质隔墙板材安装前必须根据模数进行排版设计,小于200的ALC墙板不得使用。 2)小板中间,大板两边原则进行排版。 3)安装完成后14天方可水电开槽,使用专业工具开槽,先放线,后开槽。 4)水电管线安装完成后间隔7天才允许抗裂砂浆修补施工。 4、板缝处理 【处理措施】 1)ALC轻质隔墙板与板之间榫卯自然咬合,无挤胶粘形成变形缝;安装后稳定期一周以上贴网格布胶粘封闭板面装饰作业必须在板缝处粘结耐碱玻纤网格布抗裂,网格布宽度不得小于300mm,沿板缝居中设置。面层装饰材料宜采用弹性材料进行装饰施工。 2)如有粉刷层,建议采用石膏砂浆粉刷,收缩性小,减少墙体开裂的风险。 3)装饰抹灰应与水、电、暖、卫和通讯等密切配合,各部位的预埋、预留要全部完成并经检查验收合格后才能进行,禁止事后凿洞、打眼和剔槽。 5、材料吸水性 卫生间砌筑墙体 【处理措施】 6、管卡法施工 管卡法施工平面图 【处理措施】 1)确定方向,考虑吊顶等,防止铁片外露情况。 管卡法施工顶部节点图 2)墙体安装时,必须保证顶部批浆密实,下部用木楔塞紧,下口预留30mm缝隙。待墙体静置最少7天以后进行退木楔,填塞底部1:3水泥砂浆坐浆料,静置期间,墙上不得进行任何作业。 7、配电箱部位 配电箱部位立面图 【处理措施】 1)为配电箱应制作异形板,并预埋在异形板内。 2)严禁墙板安装后开槽埋设配电箱。










ALC轻质隔墙板装卸

























以上内容来源于网络收集整理,如有侵权请联系客服