今天整理了一下建筑主体结构施工阶段,钢筋、模板、混凝土施工及水电预埋施工的要点及注意事项,在以后的施工过程中,希望大家有所受益。

一、钢筋工程
(一)钢筋原材料
1、钢筋进场控制要点:
1)要检查钢筋的品牌是否符合合同要求;
2)检查产品合格证、出厂检验报告是否符合国家标准;
3)通过观察法确定钢筋质量是否符合国家标准(钢筋应平直、无损伤,表面不得有裂纹、油污、颗粒状或片状老锈);
4)钢筋进场验收后,填写《材料进场验收记录表》,并留存影像资料;
5)按照产品的抽样方案进行抽样复检,出具钢筋检验报告,合格后方可使用。
2、钢筋堆放控制要点:
1)钢筋的堆放场地应硬化,并确保排水顺畅;
2)应按级别、品种、直径、厂家分垛码放,并挂标识牌,注明产地、规格、品种、数量、质量检验状态(待检、合格、不合格);
3)为防止钢筋锈蚀,不能及时使用的钢筋应用彩条布进行覆盖,且钢筋宜设置在垄墙或方木上。

(二)钢筋加工控制要点
1、钢筋加工样板展示区:
1)钢筋制作样板,包括钢筋切断、弯曲、丝扣加工。
①钢筋切断:
A、确保下料长度准确;
B、检查被切断钢筋质量,将劈裂、缩头或严重弯头的部分切除;
C、用于机械连接的钢筋必须采用无齿锯切割,保证端头平直,顶端切口无斜口、马蹄口或扁头。
②钢筋弯曲
A、一级(光圆)钢筋受拉时末端做成1800弯钩,弯后平直段长度≥3d;
B、箍筋与拉钩末端做1350弯钩,弯后平直段长度≥10d且≥75mm(无抗震要求时不小于5d);
C、钢筋末端做90°弯钩,弯后平直段长度≥12d(或满足设计要求)。
③丝扣加工
A、丝扣长度比1/2套筒长度多一个丝扣;
B、丝头牙形饱满,无虚牙、断牙,无扭肋。
2)钢筋绑扎必须满绑,严禁跳绑、漏绑;直径≤ф14的钢筋必须采用绑扎连接,禁止采用电渣压力焊;模板定位筋要求砼浇筑前预留插筋,严禁直接焊接在主筋上。钢筋连接样板,包括绑扎、机械、焊接连接
①绑扎连接:搭接长度满足规范要求(1.2Lae,Lae长度:三级钢,一级抗震,C30:40d,C35:37d,C40:33d),且绑扎不少于三道。
②机械连接:连接后外露丝扣个数不大于1个。
③焊接连接:
A、四周焊包均匀凸出钢筋表面≥4mm;
B、钢筋头无烧伤缺陷;
C、轴线偏移不大于钢筋直径的0.1倍,且不得大于2mm。

2、钢筋批量加工控制要点:
1)核对钢筋加工下料单
检查下料单中钢筋的型号、间距、尺寸、安装方式等与图纸及规范要求是否一致。
2)钢筋除锈
钢筋表面的油渍、漆渍及浮皮、铁锈等必须清除干净。
3)钢筋调直
钢筋调直必须采用机械方法调直(禁止冷拉伸长)。
4)钢筋切断、钢筋弯曲成型、丝扣加工均按照样板标准进行控制。
(三)钢筋安装控制要点
1、钢筋绑扎样板区的控制要点
1)钢筋绑扎样板:包括剪力墙、柱、梁、板、楼梯绑扎样板
①剪力墙钢筋绑扎样板
A、钢筋搭接:在加强部位按照50%搭接百分率设置,搭接长度1.2Lae(Lae长度:三级钢,一级抗震,C30:40d,C35:37d,C40:33d),错开500mm;在非加强部位,搭接率可以达到100%,但搭接长度不小于1.2Lae;
B、钢筋间距:钢筋间距严格按照图纸要求布置,偏差≤10mm;
C、拉钩数量:严格按照图纸及规范要求设置,不得有漏绑现象,绑扎牢固且弯折方向需错开布置;
D、钢筋定位:墙体竖向梯子筋:间距1.2m布置,可代替墙体竖向钢筋,但要比设计直径大一规格;水平梯子筋:控制立筋间距及位置,设置一道水平梯子筋,距板高度不大于300mm, 作为上层定位筋周转使用 ;双F卡、塑料垫块:控制墙体钢筋截面及钢筋保护层厚度,双F卡间距800mm梅花形布置且必须与钢筋绑扎牢固,塑料垫块间距400mm梅花形布置,墙钢筋间距不得大于10mm,保护层厚度偏差不得超过±5mm。
②柱钢筋绑扎样板
A、箍筋设置(应按设计要求配置箍筋,当设计无具体要求时,应符合下列规定):纵向受力钢筋搭接连接时,在主筋搭接范围内设置箍筋加密区,加密区箍筋间距为100mm和5d(d为搭接钢筋的较小直径)较小者;梁柱节点处箍筋必须按要求设置;剪力墙钢筋代替箍筋时,要将原箍筋所包围柱筋全部包围,与柱纵筋相交处设置拉钩,弯钩角度全部为135°。
B、连接设置:柱纵向受力筋连接部位必须设置在1/3净高以上且在距梁板底部500mm以上,相邻纵筋焊接连接位置错开距离≥35d且≥500mm,机械连接位置错开距离≥35d。
C、必须将钢筋交叉点全部绑扎。
D、在柱箍筋上放置塑料垫块。








③梁钢筋绑扎样板
A、直锚长度不小于Lae;
B、弯锚时水平段不小于0.4Lae,弯锚弯曲段不小于15d,锚至框架柱内时,水平段需伸至柱外侧纵筋内侧;
C、梁高度大于450mm时设置水平构造筋,间距≤200mm;
D、应按设计要求配置箍筋。当设计无具体要求时,梁柱节点处设置箍筋加密区,长度为500mm与1.5倍梁高较大者,第一道箍筋距节点距离小于50mm;
E、梁钢筋双排设置时,上下排钢筋间距为钢筋直径d与25mm较大者。
④顶板钢筋绑扎样板
A、上下排钢筋的间距符合设计要求;
B、上层钢筋的弯钩长度不小于板厚h-30mm;
C、下层钢筋锚入梁中长度不小于5d,且至少到梁中线;
D、上下层钢筋锚入剪力墙时,伸入剪力墙内的钢筋长度为0.35La与5d较大者,且至少过墙中线,另外上层钢筋在剪力墙内向下弯锚15d;
E、上层钢筋使用马凳铁支撑,且使用架立筋控制钢筋保护层厚度,下层钢筋使用混凝土垫块支撑,间距800mm-1000mm;
F、升降板处,钢筋在变截面处相交长度至少为La。
架立筋采用Φ14钢筋穿Φ15PVC管作为辅助架立筋(间距400-600mm),将板的负弯矩钢筋临时悬挂固定于辅助架立筋下,使负弯矩钢筋、辅助架立筋、分布筋和撑脚连成整体(如图),从而构成刚度较大的钢筋网片,能承受一定的冲击力和偶尔的人工踩踏,避免混凝土浇捣过程造成负弯矩筋的严重偏位、下陷和严重变形情况,同时在辅助架力筋两端焊接Φ10钢筋脚,使脚底到架力筋顶面高度为楼板厚度(如开间较大,考虑架立筋起拱)




⑤楼梯钢筋绑扎样板
A、上下排钢筋间距符合设计要求;
B、上部纵筋锚入梯梁,伸入梯梁长度不少于0.35La(考虑充分发挥钢筋抗拉强度时为0.6La),且至少伸至梁对边后方可向下弯折,弯钩平直段长度不少于15d;
C、下部纵筋锚入梯梁,伸入梯梁长度不少于5d,且至少伸过梁中线;
D、梯板上部纵筋设置为非贯通筋时(在梯板两端设置),纵筋在梯板内长度至少为1/4Ln(Ln为梯板长度)。
2、钢筋绑扎样板段的控制要点
1)梁:附加筋上排钢筋加筋长度应按设计要求配置,当设计无具体要求时为1/3梁跨度,二排钢筋加筋长度为1/4梁跨度,跨度为相邻梁跨度较大者。
2)板:板下方无梁且上部有砌体时,需在砌体正下方部位设置附加筋,附加筋直径不小于14mm,相交后伸出长度不小于La。
3、大面积施工的控制要点
钢筋工程大面积施工时,严格按照样板施工质量标准来要求现场的施工。
(四)钢筋成品保护控制要点
1、钢筋加工完成后的成品保护
对检验合格的丝头盖好保护帽,以防锈蚀、污染,按规格分类码放整齐,待运至施工现场使用。
2、绑扎过程中的成品保护
墙筋绑扎时应搭设临时架子,不准蹬踩钢筋,对产生变形的钢筋应在模板支设前整改完毕。
3、混凝土浇筑时的成品保护
浇筑混凝土前将墙、柱竖筋用彩条布、塑料条包裹严密,并且在混凝土浇筑后,及时用棉丝或钢丝刷将被污染的钢筋擦净。
4、板面钢筋的成品保护
板面钢筋绑扎完成后,设专人看管,严禁施工人员踩踏钢筋。混凝土浇筑时用钢筋马蹬跳板搭设临时通道或在钢筋网上铺设木跳板,浇筑时指派专人监管,控制跳板撤离时间,及时对变形移位的钢筋进行恢复,马登铁如右图。
混凝土浇筑时,如采用布料机等机具,严禁将其直接架放在顶板钢筋上,要求单独制作支架,将其安放于支架上,避免对已绑扎好的钢筋造成破坏。
5、水电预留预埋件的成品保护



二、模板工程
(一)模板材料控制要点
1、木模板:木模板一律采用清水模板,模板标准尺寸2440mm*1220mm,厚度不得小于15mm,材料进场时一定要认真核对模板尺寸,尤其是厚度,不合格者不得使用。
2、钢模板:钢制模板需要依据剪力墙实际尺寸定制,外墙钢模制作时严禁考虑保温板大模内置尺寸,且至少制作三道对拉螺栓孔。
3、加固龙骨:作为模板支撑龙骨的木方标准尺寸为50mm*100mm,也可采用C型钢作为次龙骨(建议)。
4、钢管:标准尺寸为48*3.5。
(二)模板加工控制要点
1、柱模板要采用整块拼装,局部切割的制作方式,钢制大模板事先做出对拉螺栓孔,按实际放样尺寸编号,并拼装,方木要经过压刨双面刨平;
2、梁板模板要采用大块拼装,局部切割的制作方式,拼缝要严密,阴阳角处要拼齐、钉牢固。
3、木方经压刨双面刨平,达到平整坚固,不得有翘曲或变形;
4、剪力墙模板要采用整块拼装,局部切割的制作方式,木模板采用五道拉杆、钢模板采用三道拉杆。
(三)模板安装与加固控制要点
1、在总包单位进场后,主体工程开始施工前,在门口需设置模板施工“样板展示区”,展示区内容及标准如下:
1)模板安装、加固、支撑样板及控制要点:
①墙柱模板控制要点
A、模板安装:应按控制线和模板设计图纸要求安装;安装前应将施工缝凿毛,并清理干净,在墙柱模板根部抹干硬砂浆堵缝厚度不小于5cm, 在砂浆达到一定强度以后方可进行混凝土浇筑,防止跑浆漏浆,顶板及梁模板拼缝小于3mm时用胶带密封,拼缝介于3-5mm时塞海绵条后用胶带密封 ;在涂刷模板隔离剂时,不得沾污钢筋和混凝土接槎处;模板尺寸、标高、位置要校核准确(外墙模板安装时,螺栓孔宜向外侧找坡);模板周转次数不得超过五次,使用过程中对有开胶、翘边、变形、毛边的模板(尤其是梁侧模)应及时更换。
B、模板加固:剪力墙模板不少于5道拉杆,模板背板龙骨采用50mm*100mm木方(或采用C型钢),间距不大于200mm均匀布置,主龙骨采用钢管、蝶形扣件与穿墙螺杆加固;外墙、楼梯间内层间砼接茬部位和楼梯施工缝部位易出现错台、漏浆问题,要求在下层砼浇筑前在梁或墙内统一预埋专用螺栓,同时将该部位的外侧模板下返100-150mm,配合海绵条的使用,保证该部位模板加固紧固严密,杜绝漏浆、错台现象发生。




②梁、板模板控制要点
A、模板安装与加固:顶板模板主龙骨采用100mm*100mm木方均匀布置(或两根钢管,但钢管一定要采取措施保证顶丝受力不偏心),次龙骨采用50mm*100mm木方或C型钢,龙骨与梁或墙模板的间隙不超过200mm,内满堂支撑架必须设置扫地杆,立杆底部设置垫木,扫地杆离地200mm,U托顶部立放两根木方;模板安装、加固体系满足模板专项方案要求。
B、模板支撑:模板安装时,板底用满堂架,梁底用双排架,事先根据所抄平线,把上部钢管找平。所用钢管不能有弯曲、变形或裂纹, 扣件要事先检查,挑选,看是否有裂痕,螺丝转动是否灵活。板立杆间距为≤1500mm,梁立杆间距≤1000mm,水平杆间距≤1500mm,水平要设扫地杆,立杆要纵横成线,水平杆要大面平直。模板支撑体系满足模板专项方案要求。墙体模板龙骨采用50mm*100mm木方(或采用C型钢),间距不大于200mm均匀布置,主龙骨采用钢管、蝶形卡与穿墙螺杆加固且间距不大于600mm。门窗洞口及梁底必须采用双排架进行支撑,间距不超过1000mm。洞口部位加固必须到位,防止洞口梁下沉或洞口截面变形导致洞口尺寸偏差过大。



2)模板降板样板控制要点:制作定型降板模板,安装时固定牢固,保证模板不跑位、不变形,待混凝土达到强度时再拆模。
3)除样板展示区外,在每栋单体楼模板工程大面积施工前,需选取一段模板工程作为施工样板,并经甲方项目部及工程部验收合格后(留存影像资料)方可大面积施工,大面积施工质量不能低于样板质量。
2、模板大面积施工控制要点:
1)模板的接缝不应漏浆;在浇筑混凝土前,木模板应浇水湿润,但模板内不应有积水;
2)模板与混凝土的接触面应清理干净并涂刷隔离剂(顶板除外),但不得采用影响结构性能或妨碍装饰工程施工的隔离剂(如油性隔离剂);
3)浇筑混凝土前,模板内的杂物必须清理干净;
4)用作模板的地坪、胎模等应平整光洁,不得产生影响构件质量的下沉、裂缝、起砂或起鼓。
5)模板的标高、垂直度及起拱高度
①垂直度:木模板与钢制模板垂直度测量值偏差应不超过4mm;
②标高、起拱:按照50线进行模板标高控制,对跨度不小于4m的现浇钢筋混凝土梁、板,其模板应按设计要求起拱;当设计无具体要求时,起拱高度宜为跨度的1/1000~3/1000。


6)预埋件、预留孔洞允许偏差

7)模板安装允许偏差

8)模板拆除:
1)底模及其支架拆除时的混凝土强度应符合设计要求;
2)当设计无具体要求时,混凝土强度应符合下表的规定:模板周转次数不得超过五次,使用过程中对有开胶、翘边、变形、毛边的模板应及时更换。


三、混凝土工程
(一)混凝土进场控制要点
1、商品混凝土入场后,使用前,要核查其开盘鉴定,合格方可使用;
2、现场检查骨料情况及塌落度,泵送混凝土塌落度控制在160mm-200mm;
3、按照取样要求进行混凝土试块的制作:
1)当一次连续浇筑超过1000m3时,同一配合比的混凝土每200m3取样不得少于一次;
2)每一楼层、同一配合比的混凝土,取样不得少于一次;
3)每次取样应至少留置一组标准养护试件,同条件养护试件的留置组数应根据实际需要确定。
(二)混凝土浇筑控制要点
1、在总包单位进场后,主体工程开始施工前,在门口需设置混凝土施工“样板展示区”,展示区内容如下:
1)砼柱(墙)根部凿毛样板:砼施工缝须进行凿毛处理,保证砼接茬可靠。如图2所示:
2)砼成型样板:
①表面平整,无裂缝,颜色均匀一致;无蜂窝、麻面、狗洞、露筋、胀模等明显外观缺陷。砼垂直度、平整度满足公司最低要求(垂直度±6mm、平整度±6mm)。如图3所示


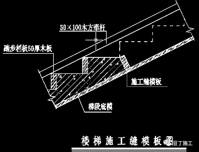
②楼梯施工缝预留
楼梯上的施工缝应留在踏步板的1/3 处(或至少三个踏步),但要注意接缝面应斜向垂直于楼梯轴线方向。如下图所示:

3)除样板展示区外,在每栋单体楼混凝土工程大面积施工前,需选取一段混凝土浇筑及成型效果作为施工样板,并经甲方项目部及工程部验收合格后(留存影像资料)方可大面积施工,大面积施工质量不能低于样板质量。
2、大面积施工控制要点
①旁站:混凝土浇筑时,现场工程师及总包现场管理人员必须要进行旁站监督(工程部会不定期进行巡查)。
顶板砼浇筑时应对钢筋采取保护措施,以防踩踏变形,如使用钢管跳板搭设临时通道、在钢筋网上铺设木跳板、设置成品马凳等;浇筑时指派专人监管,及时对变形移位的钢筋进行恢复。
②振捣:
1)浇筑振捣一定要到位,并且符合要求:严格控制振捣时间,一般在20秒左右,严防漏振、过振或振捣钢筋。并应随时检查钢筋保护层和预留孔洞、预埋件及外露钢筋位置,确保预埋件承压板底部混凝土密实,外露面层平整。


2)振捣点要均匀分布,一般间距不大于50cm;
3)梁柱节点处或梁柱钢筋较密集时,应配备少量Φ30振捣棒。
③施工缝设置与处理:
施工缝的位置应设置在结构受剪力较小和便于施工的部位,且应符合下列规定:
A、柱应留水平缝, 梁、板、墙应留垂直缝。
B、施工缝应留置在基础的顶面、梁的下面、无梁楼板柱帽的下面。
C、和楼板连成整体的大断面梁,施工缝应留置在板底面以下20mm~30mm处。当板下有梁托时,留置在梁托下部。
D、对于长宽比大于二比一的单向板,施工缝应留置在平行于板的短边的任何位置,同时施工缝应垂直留置,不能做成斜槎。
E、有主次梁的楼板,宜顺着次梁方向浇筑,施工缝应留置在次梁跨度中间1/3 的范围内。
F、墙上的施工缝应留置在门洞口过梁跨中1/3 范围内,也可留在纵横墙的交接处。
G、墙、柱等层间砼施工缝处必须进行凿毛处理,凿毛时间不得过早,统一要求为剪力墙筋绑扎完成后、墙模合模前,要求凿除表面浮浆,露出砼石子,并最终清理干净,保证接茬质量。
④厨卫间主排水、排烟(气)道以及泵管、放线孔预留洞均采用倒梯形(或倒圆台)的定型模板留置。如泵管预留洞,上口统一要求为不大于300*300mm,下口为250*250mm;放线孔上口尺寸为不大于200*200mm,下口为150*150mm。
④冬施:冬季施工要做好保温措施,控制好混凝土的浇筑温度及混凝土结构的内外温差,以保证混凝土结构的质量,从而在实测时才能保证混凝土强度全部符合要求。
(1)、混凝土浇筑前,要清除模板及钢筋上的冰雪和污垢。混凝土入模前,采用专用的设备测定混凝土的温度、坍落度等性能,浇筑面温度不得低于2℃,保证混凝土的入模温度不得低于5℃;开始养护时的温度不得低于5℃。
(2)、养护过程中仍须测养护温度,达不到5℃时应采取加热措施养护。混凝土测温如下图所示)


(三)混凝土收面及养护
1)混凝土浇筑完成振捣后收面找平,初凝前(人踩踏不陷,只有轻微脚印为准),对混凝土表面进行二次压光(或拉毛),二次压光后再覆盖塑料薄膜。
2)混凝土强度达到1.2N/mm2(以铁钉划痕为白色划痕为准)前,不得在其上踩踏或安装模板及支架, (尤其是水暖工提取预埋洞模和放线工不准提前施工) ;
3)应在浇筑完毕后的12h以内对混凝土加以覆盖并保湿养护,同时要求施工单位做好混凝土养护记录,混凝土浇水养护的时间:对采用硅酸盐水泥、普通硅酸盐水泥或矿渣硅酸盐水泥拌制的混凝土,不得少于7d;对掺用缓凝型外加剂或有抗渗要求的混凝土,不得少于14d;
4)浇水次数应能保持混凝土处于湿润状态,混凝土养护用水应与拌制用水相同;
5)采用塑料布覆盖养护的混凝土,其敞露的全部表面应覆盖严密,并应保持塑料布内有凝结水。




四、主体预埋
(一)电气
1、开关高度1.4m,水平150-180mm
2、疏散指示灯距地0.5m,安全出口指示灯门上口200mm
3、电视强弱电插座高度1m,间距0.5m
4、空调插座高度2m,床头柜插座0.65m,电话、网络接口0.3m
5、可视对讲接口1.5m
6、温控阀电源0.65m,控制面板1.4m
7、厨房冰箱插座1.5m,其余0.5m
8、厨房燃气热水器插座1.5m,其余1.5m
9、卫生间电热水器2.3m,洗衣机1.5m
(二)水暖
1、冷热水管间距:
洗菜盆、洗手盆间距200mm,燃气热水器、电热水器、淋浴、浴缸150mm
标高:洗菜盆、洗手盆450mm,燃气热水器、电热水器1.2m,淋浴1150mm,浴缸650mm,洗衣机1.2m;
水平位置:按照图纸位置施工,如没有尺寸,用比例尺测量经甲方确认。
2、各排水管道(坐便、地漏)位置一定按照图纸位置预留。
3、排水主管道考虑是否有旋流接头。
4、材料全部为合同约定品牌,包括管材、管件(预埋套管、弯头、三通、管卡等)。
以上内容来源于网络收集整理,如有侵权请联系客服