地下室顶板后浇带支撑的传统做法是脚手架模板独立支撑,在两侧结构模板支撑拆除时予以保留,待后浇带内混凝土浇筑完成并养护28天后方可拆除。传统支撑方法施工便捷整体稳定,但是也存在如下弊端:(1)长期占用模板及支撑材料;(2)日常管理难度大,支撑体系易被损甚至人为拆除;(3)模板、方木、顶托等材料容易变形、腐烂、锈蚀等,造成支撑系统松动,无法保证后浇带两侧梁板的受力,甚至造成裂缝产生,影响结构的安全及使用。

传统顶板后浇带支撑系统示意图
地下室顶板后浇带需要动辄上百天乃至数百天的留置时间,鉴于传统后浇带模板支撑体系存在的弊端,特对支撑方案进行分析优化,在后浇带两端梁板悬臂末端设置构造柱支撑,取代传统的支撑体系,即:顶板后浇带混凝土构造柱支撑。


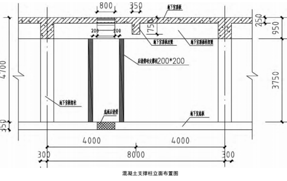
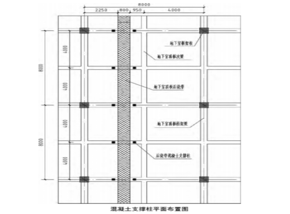
顶板后浇带混凝土构造柱支撑效果
顶板后浇带混凝土构造柱支撑:在普通梁板模板安装及混凝土浇筑时,同时进行构造柱支撑的施工,在梁板及构造柱支撑达到设计强度后,全部拆除模板支撑,此时后浇带两侧梁板由预设的混凝土构造柱进行支撑。下面就基于腾越建筑的实例项目,看一看具体施工步骤及要求。
施工步骤及要求
①底板浇筑 → ②构造柱定位放线 → ③插筋 → ④梁底开孔 → ⑤随柱子封模 → ⑥加固 → ⑦随顶板一起浇筑

混凝土浇筑柱子定位插筋

后浇带清理后模板封闭

按优化图纸梁上开孔

200*200构造柱,离后浇带/梁端部300设置,随柱子一起封模
(1)后浇带两侧梁端混凝土构造柱支撑应先在底板上定位,确定混凝土支撑柱的位置在梁端内侧200或300mm处,按布置方案进行放线。
(2)后浇带两侧梁端混凝土构造柱支撑应在地下室结构梁板模板搭设过程中同时搭设加固,并在地下室框架柱混凝土浇筑过程中同时浇筑、养护。
(3)梁端混凝土构造柱支撑搭设时不得将支撑柱与后浇带两侧梁板分离。
(4)后浇带两侧梁端混凝土构造柱在浇筑梁板混凝土时应清理干净柱头的残渣、垃圾等。
(5)地下室顶板模板支撑时应按施工方案整体搭设。
(6)地下室后浇带两侧混凝土在达到拆除条件时将后浇带内模板支撑同时拆除,在模板支撑拆除时不得碰撞混凝土支撑柱。
(7)在地下室顶板后浇带满足浇筑条件后,应先对后浇带两侧梁板混凝土断面上的松散残渣进行凿除,并在梁板中间位置凿出凹槽以便于安装止水条。
(8)按设计要求对后浇带内的钢筋进行清理、修整、绑扎。
(9)重新支设顶板后浇带模板,顶板后浇带模板二次搭设应在地下室底板后浇带混凝土浇筑完成后进行,模板二次搭设时应满足《模板工程施工方案》及规范要求。
(10)后浇带混凝土浇筑完成后应按设计要求进行养护。
(11)模板支撑在后浇带混凝土强度达到100%以后并满足设计及规范要求后,进行模板拆除。
(12)地下室顶板混凝土模板拆除后将后浇带两侧混凝土支撑柱进行凿除,凿除时应先人工凿除柱头部分,并对梁板底的混凝土面进行修整,采用1:3水泥砂浆找平。
(13)地下室后浇带两侧梁端混凝土构造柱拆除时应采用人工凿除破碎,不得采用整体推到以免破坏地下室底板,并在混凝土凿除时保证施工人员的安全,保证施工时所需的照明设备及安全警示装置,设专职安全员进行旁站。


顶板后浇带两侧悬臂梁板末端设混凝土柱的支撑体系不仅避免了传统钢管架模板支撑体系的材料变形,模板材料损耗更换对悬臂梁板受力的影响,而且提高了支撑架材料的周转效率,有较高的经济效益。同时,不仅便于地下室施工通道的留设,还方便进行后浇带两侧施工缝的凿毛清理及后浇带二次支模时钢筋的调整。在施工中构造柱支撑应避免被水平冲击荷载撞坏,且应保证后浇带所在跨上的楼板不应有过大堆载。
以上内容来源于网络收集整理,如有侵权请联系客服