文章来源:建筑工程鲁班联盟
源自丨江苏南通二建集团有限公司
随着装配式建筑的大面积推广落地,传统施工工艺也随之变革,塔机的选择及场布等都与之前有很大不同,我们且通过一个工程实例来看一下吧。
由无锡爱之虹置业有限公司投资、江苏南通二建集团有限公司施工的“五恒”健康科技精装修住宅项目,主要预制混凝土(PC)构件类型包括:预制剪力墙板、预制叠合楼板、预制楼梯板。装配式建筑的预制率大于 30%,预制装配率大于 50%。

建设单位:无锡爱之虹置业有限公司
施工单位:江苏南通二建集团有限公司
监理单位:上海建设工程咨询有限公司
设计单位:无锡市城归设计有限责任公司
PC 构件生产单位:常州杰通装配式建筑有限公司
PC 构件安装单位:苏州旭杰建筑科技股份有限公司

预制率概况
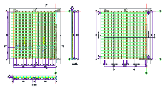
以首批次 6 栋楼举例,预制混凝土(PC)构件类型统计汇总表及构件示意图如下:
(1)预制竖向构件汇总表



















现场运输道路及堆场设置基本要求
4. 预制叠合楼板堆放层数不宜大于 6 层(具体按设计及相关要求)。叠合板以 4 个或更多支点码放。用木方作垫块,保证板面不受破坏。构件堆放要保持平稳,底部应放置垫木。成堆堆放的构件应以垫木隔开,垫木厚度应高于吊环高度,构件之间的垫木要在同一条垂直线上,且厚度要相等。构件堆放应有一定的挂钩绑扎间距,堆放时,相邻构件之间的间距不小于 200mm。
施工场地平面布置安排
因各主楼全部坐落于地库上,主楼四周均有沉降后浇带。在满足销售节点目标的情况下,同步或尽早施工主楼边上的纯地库。

及时进行地下车库基坑回填土,贯通施工道路。

PC 构件由运输车辆卸载后堆放于每栋楼的 PC 专用堆场,并按照指定顺序进行归类堆放,提前规划施工堆场并用明黄色油漆标识清晰,道路两侧设置定型化格栅,挂标识。禁止越线行驶。

每个 PC 专用堆场由 4 个区域组成,分别为周材及耗材货架、叠合板堆放区、楼梯堆放区域、PC 墙板堆放区域。
(1)预制剪力墙的堆放
其中 PC 墙板采用竖放,使用 6#、10#槽钢焊接而成的专用支架,支架由 PC 厂家提供,墙板搁支点应设在墙板底部两端处,堆放场地须平整、结实。PC 板竖向放入专用支架后两侧用木楔顶紧。

(2)预制叠合板的堆放
预制叠合楼板堆放层数不宜大于 6 层,叠合板以 4 个或更多支点码放保持平稳。垫木要在同一条垂直线上,且厚度要相等。构件堆放应有一定的挂钩绑扎间距,堆放时,相邻构件之间的间距不小于 500mm。

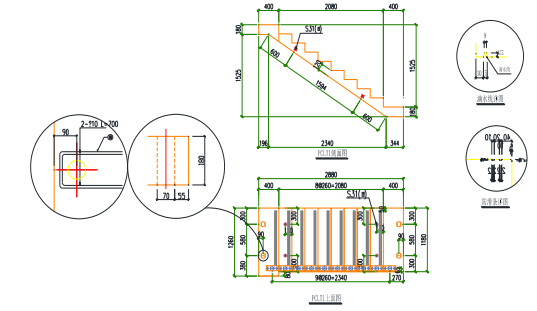
(3)预制楼梯板的堆放
楼梯堆放梯段应水平分层、分型号(左、右)码垛,每垛不超过 3 块,最下面一根垫木通长,层与层之间应垫平、垫实,各层垫木在一条垂直线上,支点一般为吊装孔位置。

(4)周材及耗材货架的堆放
PC 周转材及耗材专用货柜由角钢 L100X10 焊接而成,水平向铺放木板隔离。
塔吊型号的选择
3. 剪力墙单块重量:≤3.97T






总结
5. 司机、指挥和起重人员需经过培训经有关部门考核合格后,方能持证上岗作业,也更能保障施工安全。
以上内容来源于网络收集整理,如有侵权请联系客服