文章来源:建筑工程鲁班联盟
钢筋的尺寸定位和保护层是保证钢筋工程质量的控制要点,必须做到标准化管理、精细化施工,常用的施工工艺总结如下,大家在项目上可参考实施。
一 钢筋尺寸定位做法
楼板钢筋定位采用制作钢筋马镫的做法,不同厚度、不同规格的楼板制作不同的钢筋马镫。

底板及承台板钢筋标准做法示意图

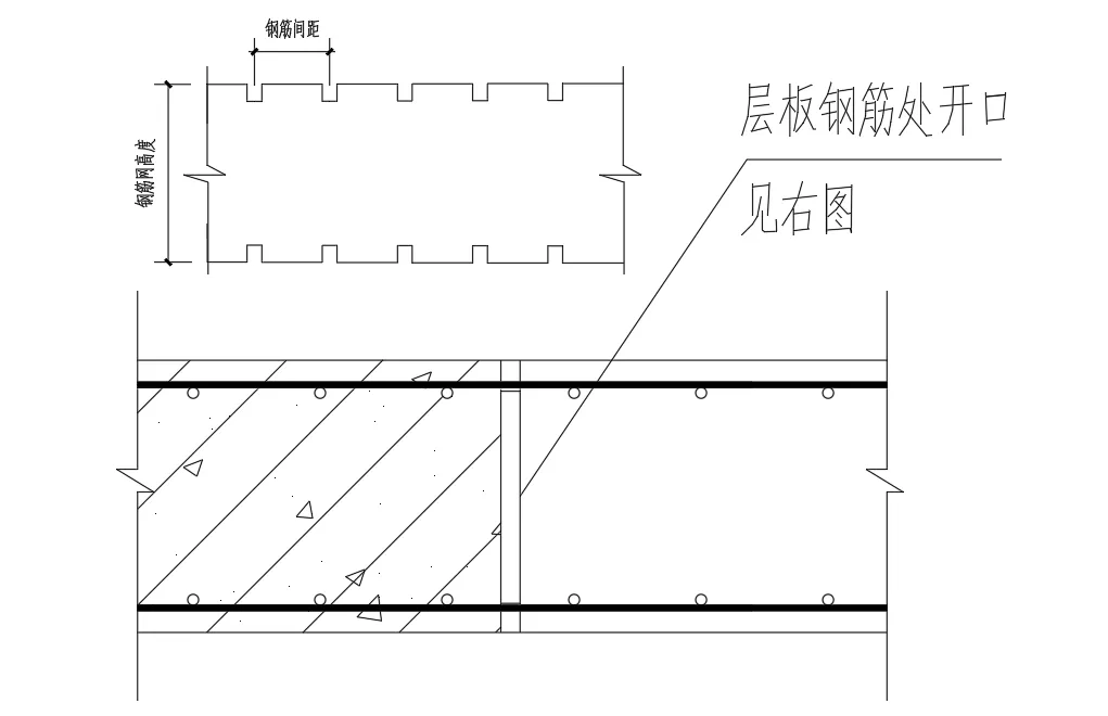
楼板钢筋尺寸定位标准做法示意图

楼板钢筋间距定位做法应用实例
为更好的保证楼板面筋的钢筋尺寸定位,楼板钢筋同时可以采用钢管悬挂法进行钢筋尺寸定位。

楼板钢筋定位采用钢管悬挂法支撑示意图
柱钢筋尺寸定位采用制作的柱筋定距框的方式进行,上下各设一道。

柱筋定距框细部节点

柱钢筋定距框示意图


框架柱钢筋定位框实图

柱钢筋定距框应用实例
墙体钢筋尺寸的定位采用废料钢筋制作的水平和竖向梯子筋。水平梯子筋上下各设一道,竖向梯子筋每隔4米设置一道。

水平梯子筋示意图

定位梯子筋节点图

墙体定位筋应用实图
后浇带钢筋尺寸定位采用旧模板制作的定距模板框来保证。

后浇带钢筋定位示意图

后浇带钢筋定位应用实例
二 钢筋保护层做法
为保证楼板面筋保护层的控制,除采用传统的钢筋马镫外,应采用专门制作的砂浆垫块保证面筋保护层的尺寸。

专门制作的楼板面筋保护层砂浆垫块

面筋保护层砂浆垫块

面筋保护层砂浆垫块应用示意图

面筋保护层砂浆垫块每隔1米设置一个
为有效保证钢筋保护层尺寸的准确性,板底、梁底、柱墙梁侧面应采用专用塑料垫块。

塑料垫块示意图
墙侧面保护层采用环行塑料垫块,间距每隔一米设置一道。


塑料垫块墙侧使用示意图

塑料垫块板底使用示意图
梁底采用支座型塑料垫块,梁侧面采用环行塑料垫块,间距每隔一米设置一道。

塑料垫块梁底使用示意图
柱侧面采用环行塑料垫块,每隔一米设置一道。

塑料垫块柱侧使用示意图

塑料垫块梁侧使用示意图
以上内容来源于网络收集整理,如有侵权请联系客服