构造柱和水平系梁是建筑砌体工程中重要的二次结构构件,构造柱主要是用于抗击剪力、抗震等横向荷载;水平系梁主要起抗震和防止砌体结构过高产生的不均匀沉降作用。本文以湖南顺天建设集团有限公司工程示例,介绍构造柱和水平系梁U型砖免支模工艺,相较于传统支模工艺优势多多。
传统的构造柱及水平系梁施工工艺一般是在待墙体砌筑完成之后,再支设木模板,需要经过配模、支模、固定、拆模等工序,这种工艺存在施工周期长,施工工序多,构造柱的整体质量及施工观感质量得不到保证,模板和人工等投入较多,经济性不高,消耗大等问题。采用U型砖免支模工艺,省去了支模和拆模的工序,并且无需留设固定模板用的拉杆孔洞,勾缝清晰,表面平整,可减少工序,降低施工成本,提高施工效率。该工艺适用于加气混凝土块填充墙或多孔砖填充墙的构造柱及水平系梁,且墙厚≥200mm。

U型砖免支模工艺
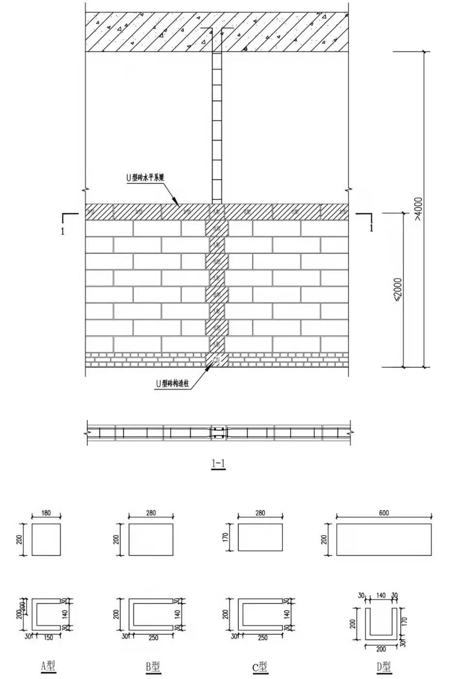
预制成品U型构造柱砖、水平系梁砖,在砌筑过程中,构造柱钢筋绑扎完成后,U型砖开口朝两侧放置,随砌体同时砌筑施工,完成至一定高度后即可浇筑构造柱混凝土;水平系梁U型砖开口朝上随砌体一同砌筑,完成后放入水平系梁钢筋浇筑混凝土,免去支模环节。



U型砖
工艺流程
熟悉图纸提前规划→根据相关模数倒制U型砖→构造柱钢筋绑扎→U型砖砌块随墙体同时砌筑→混凝土浇筑。
操作要点
7、若墙体高度大于4m,在砌至2m高度时,在墙上砌筑水平系梁U型构造柱D型砖,砌筑完成后砖内埋设水平系梁钢筋并浇筑混凝土。


综合效益
3、成型后构造柱与砌体表面平整度偏差小,墙体观感质量好,不存在传统构造柱施工后双面胶带处理问题,降低后期抹灰施工空鼓开裂的质量风险。
以上内容来源于网络收集整理,如有侵权请联系客服