文章来源:工程智库
铝合金模板是建筑业节能减排的重要技术,能够提升房屋建设的施工效率及工程质量,在当前的建筑工程中已得以广泛地推广应用。一般来说,铝模板的实施流程包括:深化设计→生产制作→试拼装→运输→安装→拆除。

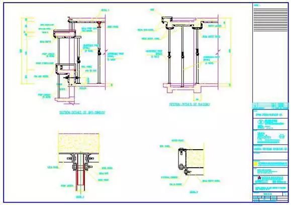
➣ 深化设计
根据建筑图深化设计铝模拼装图,并由业主/设计院审查批准

设计平面图

模板加工图

模板拼装图

节点大样图
➣ 生产制作
铝模在厂内生产制作

型材下料

冲孔焊接

半成品

QC检查

清洗

铝模成品
➣ 试拼装
铝模厂内试拼装,并由业主/设计院/监理厂内预验收及调整






➣ 运输
系统编号及拆装打包运抵现场,场地移交




➣ 安装
现场拼装及验收



➣ 拆除
拆除并重复使用

➣ 使用效果
混凝土表面效果好




下面就来施工现场
着重看一看铝模的安装与拆除
▼
➣ 铝模项目选择要求
· 层高
优先选择铝合金模板应用层高为2.8-3.2米,超过3.2米层高,支撑方式需采用传统方式加横杆及剪刀撑
· 外架
铝模与外爬架组合是最好的施工方法。外架若为挑架,则在模板设计、制造及现场安装时都需要特殊处理,成本高、施工难度加大
· 结构形式
剪力墙结构及框剪结构最优,其他结构砌筑墙体较多,使用铝模优势不明显
· 外形构造
外形线条不多,变化不复杂
· 综合经济
单栋使用30次左右,即首次使用在30层以上建筑物。多栋同一型结构,累计使用30次以上
➣ 铝模系统的组成
· 模板系统

· 配件系统

销钉、销片

长销钉、销片

杯头、胶管

对拉螺杆、垫片





K板螺丝
· 支撑系统




· 紧固系统


斜撑


葫芦拉结


背楞
· 传料孔

➣ 铝模系统的安装
· 安装流程
铝模板使用时上楼的顺序:墙身板、梁板、楼面板、支撑及其它;所有模板需要按图纸及编号安装,不能错装或漏装

墙身板安装
↓

梁板安装
↓

平板安装
↓

立杆支撑
↓

斜撑安装
➣ 重难点处理
· 剪力墙下口
在墙柱模板周边种上限位钢筋,钢筋上焊接墙厚定位钢筋;在对拉螺杆的地方安装定位胶塞和硬质成品PVC管


· 洞口加固
门洞口容易出现偏差的地方,在门洞口上下部位应各加一条背楞加固


· 阴角处理
垂直度偏差多见于阴角部位,该部位的主要子弹销和固定螺栓严格要求每单件模板的单边不少于2个且间距不超过300mm

· 起步板安装要求
(1)外墙起步板的预埋螺丝必须提前预埋牢固在下层的砼内,两个螺丝间距不能超过1200mm,且单板不能少于2个;(2)除了本身预埋的螺丝外,下面还有一排过墙丝杆对拉,以防止起步的平衡和稳固




· 脱模剂涂刷要求
(1)所有模板必须清洁干净后方可涂刷模板油;(2)墙身模板坚立后用滚筒刷油,为防止油量过多流动污染地面,只刷模板上半部分,下半部分让它自由流匀;(3)楼面部分的脱模剂不能用滚筒涂刷,只能用胶壶喷洒,且用量不能过多



➣ 铝模系统的拆除
· 根据工程经验,各部位模板时间概况如下:
约24小时可拆除墙柱模板
约36小时可拆除梁侧模板
约48小时可拆除梁底、板底模板(非承重)
约12天拆除板底承重支柱
约14天拆除梁底承重支柱
约28天拆除悬臂支柱
具体各部位拆除时间仍须根据强度判定。
· 铝模拆除注意事项:
1、铝合金模板底模拆除前,混凝土强度应达到列表的要求。
2、为保证混凝土质量,混凝浇筑施工时需增加三组同条养护立方体试块,拆除底模前需先进行此试块试压检测,或者现场进行回弹仪检测,强度满足上表要求后报监理工程师批准方可进行拆除。

· 拆除楼面模板



· 拆除梁底模板


➣ 铝模施工质量通病防治
· 通病:模板使用前未做钝化处理,混凝土成型面产生大量气泡空腔

防治:在工厂或现场采用1:3的水泥砂浆对铝模接触混凝土面涂刷2~3次,让模板表面充分钝化

· 通病:模板下口封堵方式错误造成断柱或柱根部漏浆



防治:(1)严格控制板面标高;(2)封堵使用干硬性砂浆封堵

· 通病:销钉未打导致的平面错台

防治:(1)墙身模板上的插销必须根据孔位要求全部打满;(2)两个构件连接,最少不能少于2个插销;(3)连个插销间距不能超过300mm

· 通病:模板起坎、拼缝过大,影响成型观感和质量


防治:(1)严格按照编号进行安装;(2)对变形模板进行修整

· 通病:拆模时线条、降板边缘混凝土破损严重


防治:使用专用拆模工具,根据温度高低控制拆模时间

· 通病:模板表面浮浆没有清理干净,直接影响模板的拼接尺寸和成型观感

防治:每次模板拆除完成后都要做一次清理,将模板面浮浆清理干净,拼装前涂刷脱模剂

➣ 铝模施工效果

滴水线


砌体企口


楼梯


洞口过梁


阴阳角


墙板
学习施工工艺 · 提升工程技能
以上内容来源于网络收集整理,如有侵权请联系客服