文章来源:询匠
边坡支护是施工中非常重要的保证边坡及其环境安全的防护措施,包括对边坡的支挡、加固与防护措施等。常用的支护结构型式有:重力式挡墙、扶壁式挡墙、悬臂式支护、板肋式或格构式锚杆挡墙支护、排桩式锚杆挡墙支护、锚喷支护、坡率法。房屋建筑中的基础边坡支护常用的结构形式有包括挡墙支护、排桩式支护、锚喷支护等,今天我们说下最常见的喷锚支护。边坡支护是指为保证边坡及其环境的安全,对边坡采取的支挡、加固与防护措施。

1、喷锚支护的定义
喷锚支护是使锚杆、混凝土喷层和围岩形成共同作用的体系,防止岩体松动、分离。把一定厚度的围岩转变成自承拱,有效地稳定围岩。当岩体比较破碎时,还可以利用丝网拉挡锚杆之间的小岩块,增强混凝土喷层,辅助喷锚支护。


2、喷锚支护的适用
凡易于喷浆(喷射混凝土)防护的岩质边坡,当岩层风化破碎严重、节理发育,在破碎岩层较厚的情况下,如果继续风化,将导致坠石或小型崩塌,从而影响整个边坡的稳定性。它具有较高的强度,较好的抗裂性能,能使坡面内一定深度内的破碎岩层得以加强,并能承受少量的破碎体所产生的侧压力。多适用于填土、粘性土,支护深度不宜超过6m,坡底有软弱土层影响整体稳定时慎用,不适用于深厚淤泥、淤泥质土层和地下水位以下的粉土、粉沙层。


3、喷锚工程量计算
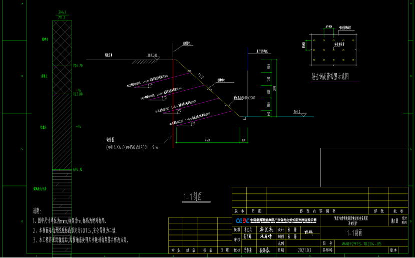
1)首选根据边坡支护平面图确定边坡剖面;


3)挂网喷锚:首先计算喷射混凝土面积(或体积),挂网钢筋按吨计算,同时需考虑是否加强钢筋;这里需要注意,部分地区的计算规则注明,“边坡支护中定额提到的喷射混凝土以图示尺寸计算,压边含在定额中”,及边坡上返到地面的平面压边部分不另行计算。
4)土钉(锚杆):按照土钉长度根据规格型号计算重量,
如果有孔道注浆,则需根据孔道直径计算注浆量;

4、其他部分算量
1)临时护栏:根据图示规格计算长度或面积,同时要考虑护栏基础等问题;
2)排水沟:靠近护栏或者边坡顶部的位置一般会设置一定长度的排水沟,这部分需要计算,同时也有可能出现集水井;

3)护坡桩:按体积计算护坡桩工程量,同时需考虑是否要计算钢筋笼工程量,同时截桩头、桩头钢筋整理也需要考虑;
4)冠梁:有护破桩的分部必定要考虑冠梁,同时冠梁钢筋、模板等问题也需要计算;
以上工程量都计算完成后,一个简单的项目护坡工程量基本上就算完了,我们需要回头整理一下图纸及底稿,查漏补缺。同时看一下,比如护坡土方、马道土方是否与土方部分有重复或者漏算的情况,及时处理。
大家还有什么关于边坡喷锚支护的问题,欢迎在评论区交流!

询匠服务热线
土建项目经理:17310453262
安装项目经理:15321087807
发项目链接
www.jiang580.com/wx/pages/wt
