了解这“10个要点”,机电工程算量更精准安装工程工程量计算的影响因素比较多,包括图纸完善性、安装专业之间的交叉碰撞、设备管线安装的工艺和安装方法、与土建的结合等,其中与土建的结合,因计量时间短、缺少土建资料等原因,很容易被工程师忽视。我们通过一个精装修项目案例,讨论分析,安装算量如何结合土建(精装修)图纸。
文章来源:询匠
安装工程工程量计算的影响因素比较多,包括图纸完善性、安装专业之间的交叉碰撞、设备管线安装的工艺和安装方法、与土建的结合等,其中与土建的结合,因计量时间短、缺少土建资料等原因,很容易被工程师忽视。我们通过一个精装修项目案例,讨论分析,安装算量如何结合土建(精装修)图纸。
山东某学校综合楼精装修工程,建筑面积24000㎡,其中地下1层含人防3209.87㎡,地上12层20790.13㎡。建筑高度49.750米,含主楼及裙楼。
理论上,机电平面图与精装修平面布置图应该是一致的。然而实际工程中,因诸多原因,总会出现机电图与精装图不一致的情况。所以通过图纸对比,确认机电平面及精装平面布置的一致性很重要。一方面,各专业的图纸可以相互辅证,确保计量结果的正确性,另一方面,也能通过发现的问题,找到不一致的地方,完善设计,避免错算漏算。
问题1,三层茶歇空间安装工程的照明平面图中,平板灯图例示意尺寸为2000*120;而对比三层精装修图纸的灯具平面定位图发现,该处平板灯尺寸为5600*100,二者不符。问题2,三层茶歇空间安装工程的动力平面图中,并无插座;对比精装修图纸的三层强弱电定位图发现,东西两侧墙面上均有插座,二者不符;问题3、安装工程的2层照明平面图中,展览空间标注有管线,但无灯具;对比精装修图纸的2层灯具定位图,发现该处设置筒灯,二者不符。该项目中,还发现类似上述不符的问题有几十处,如果在安装算量时,仅依据安装图纸进行计量,其工程量成果就会错误。后项目组通过多次与设计单位(机电设计及精装修设计)沟通,对相关问题进行了确认,并根据确认确认资料完成了安装计量。
平面图能确定设备实施的具体位置,是计算安装工程量平面工程量的主要依据;而标高,则是计算管线立面工程的主要依据。
安装专业图纸的图例表或设计说明中,一般会标注末端设备(灯具、插座、喷头、风口等)的安装高度,但如果仅根据图例表判定,很容易出现错误判断,实际工程中,需结合精装修平面图和立面图综合确定。问题1,安装工程图纸的图例表中注明,普通插座示意安装高度均为距地0.3米;而查找精装修的立面图发现,宿舍内安装电视机位置的插座距地高度为1米;问题2,安装工程图纸的图例表中注明,灯具安装高度未标注,则按常规理解为棚顶安装。而查阅精装修图纸,2层包间内吊顶有造型,不同区域高度不同,而且部分房间高度差异较大,灯具、喷头和风口的标高,必须根据精装修吊顶标高及安装位置确定具体设备设施的安装高度,进而进行管线工程量计算;
安装专业中管线敷设,有墙体内暗敷设还是墙面明敷设两种,如为暗敷设,又根据墙体介质的不同,分为预留预埋(混凝土墙、龙骨墙等)和剔槽(砌体墙)。一般电气工程中的管线,图纸中会标注敷设方式,是墙体内暗敷设还是墙面明敷设,再根据所在墙体是混凝土墙还是砖墙判断是否计取剔槽和打洞。而给排水工程及采暖工程中的管线,一般不会明确是暗敷设,还是明敷设,需根据管道所属区域的装修效果来判断。
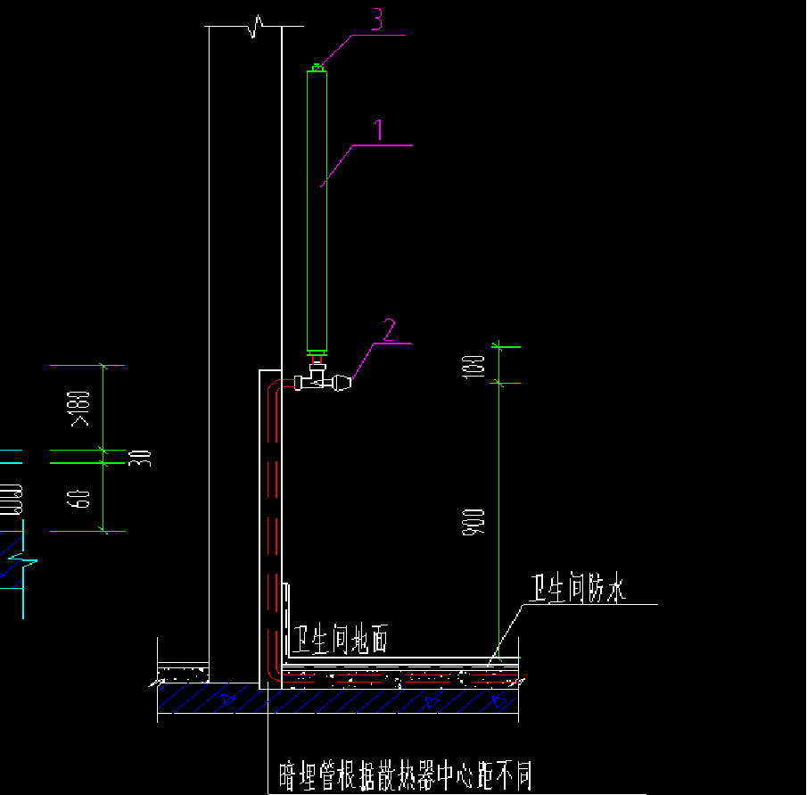
例如,该项目的卫生间散热器距地1米安装,则存在地面上返1米的管道,安装图纸中无法确认该管道的安装敷设方式。查阅精装修图纸,卫生间散热器所在位置的墙体为砌块墙,精装修效果图显示该处无外露管道,且可以判断,安装散热器的立管安装方式为暗敷设,敷设的墙体为砌块墙,则该管线需按暗敷设计量,计取剔槽工程量。给水管道剔槽同此情况。安装工程仅依靠安装专业图纸计量,是不够的,要从以下几个角度,结合土建及精装图纸,才能保证计量成果的正确性和精确度。1、对比平面布置图,确认安装设备设施和管线布局的一致性,计算管线的平面工程量;2、对比校验设备设施标高,准确计算管线的立面工程量;3、根据效果图及安装墙体介质的不同,确认安装工程管线的敷设方式、敷设位置等,进行有针对性的管线及附属构件的计量;4、对比土建及安装图纸,确认安装专业各种孔洞的预留数量、位置、大小设置,以及设备预埋件的预埋;5、对比土建及安装图纸,确认安装工程的穿墙套管以及穿板套管的数量、位置、大小,进行套管安装及孔洞封堵的工程量计算等;6、结合土建专业的施工方法和工期进度,确认安装工程脚手架、材料设备二次搬运费、材料堆放现场加工等措施费的工程量计算;7、核对大型设备安装吊装孔的设置及吊装工程量计算;8、结合土建工程确认安装工程中配电柜、暖通设备、屋面管道等的基础工程量计算;9、与土建专业进行明确的计量计价范围划分,例如灯带、墙板开洞、风口封边等;随着工程建设专业化、信息化的发展,各专业之间的配合与相互结合越来越密切,安装工程量计算与土建的结合也越来越多,安装造价工程师,了解、学习、掌握土建知识,已经成为一种必须和趋势,希望大家相互学习,共同提高。
以上内容来源于网络收集整理,如有侵权请联系客服